VIEUX-COLLÈGE

Rénovation intérieure d’un immeuble des années 1920 au centre-ville de Genève – En collaboration avec Meike Stender

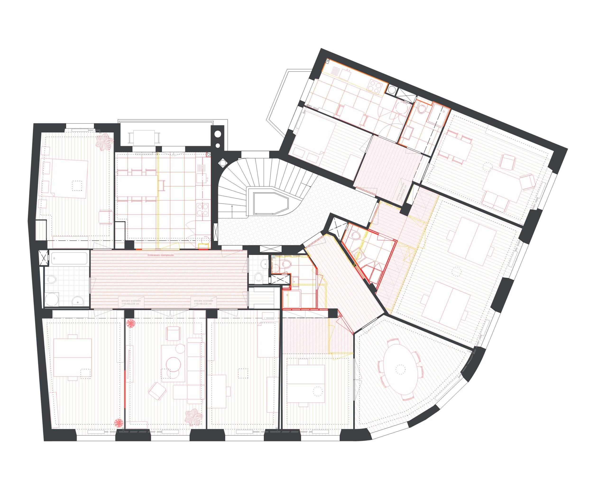
Dans ce projet de rénvation intérieure dans un immeuble inventorié, les considération patrimoniale ont joué un rôle prépondérant. Les menuiserie et serrureries originales ont été restaurées délicatement. Le parquet mosaïque en chêne massif donne au revêtment de sol un aspect chaleureux, qui complémente les tons neutres des autres surfaces. 

 

FACTS

réalisation – client privé

Immeuble de rendement

Étape I: 2022

Étape II : 2025

Vieux-Collège – Plan

Parquet en chêne mosaique et seuil en noyer d’originie.

Détails contemporains dans les salles de bain 

Les poignées de portes originales ont été restaurées par un artisan local. 

Douceure rétro et équipement moderne pour la cuisine

De grandes pièces simples et fonctionelles, avec le charme de l’ancien restauré.